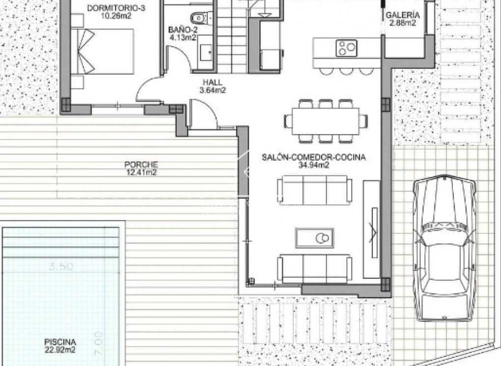
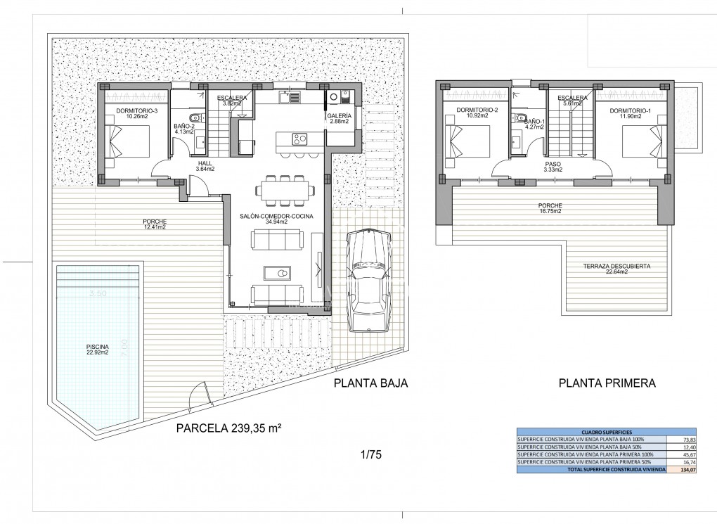
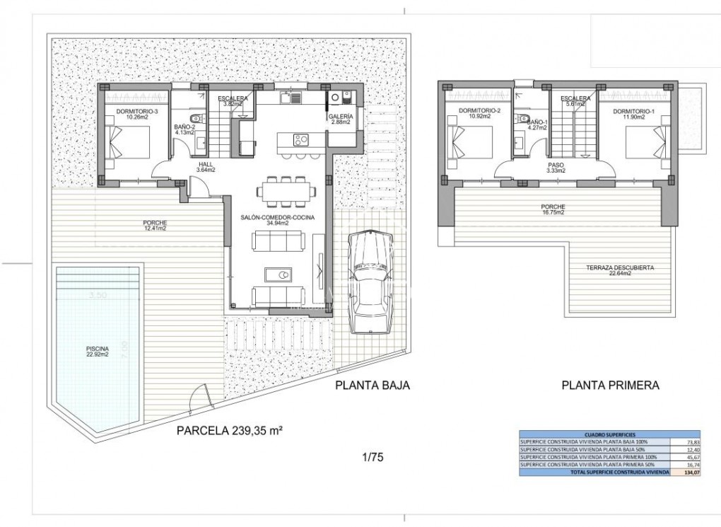
Villas neuves situées à Benijófar, une zone privilégiée de la Costa Blanca, proche de tous les services, à 20 minutes de l'aéroport d'Alicante, à proximité des magnifiques plages de Guardamar et de plusieurs terrains de golf. Il s'agit d'une villa de style moderne comprenant un grand salon-salle à manger avec cuisine américaine, 3 chambres (dont une en suite) et 2 salles de bains. Villa construite sur un terrain privé avec terrasse, zone de stationnement, piscine privée, jardin de style méditerranéen avec superbes vues. La maison dispose également de la climatisation chaud/froid, d'un interphone vidéo et d'une porte blindée. Benijófar est un charmant village avec une belle église et tous les services comme les supermarchés, les pharmacies, les banques, les restaurants et un parc naturel situé à proximité des villas. Il y a plusieurs terrains de golf à proximité, ainsi que des parcs aquatiques dans les environs de Rojales et Torrevieja. Benijófar est situé à quelques minutes de la N-332 et de l'AP-7. À seulement 30 minutes de l'aéroport d'Alicante, à 10 minutes des plages de Guardamar et Torrevieja.