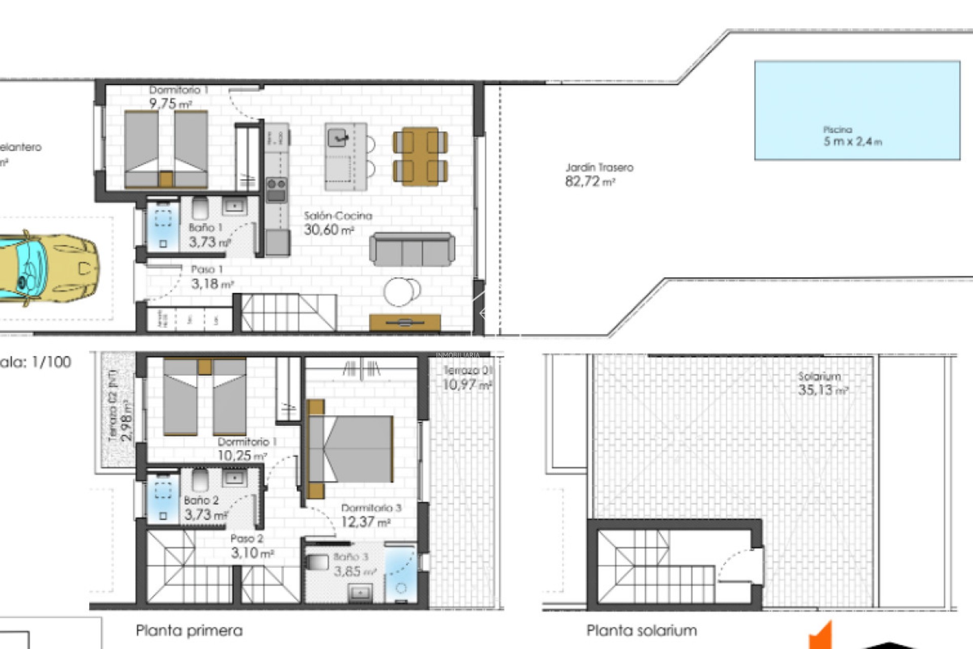
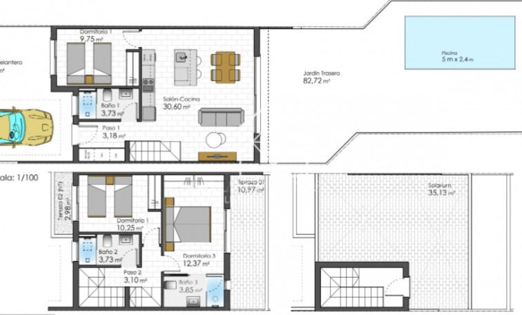
Nous sommes ravis de présenter ces villas exclusives situées à Murcia, San Javier, à quelques pas des plages cristallines de la région. Ces propriétés disposent de trois chambres et trois salles de bains, intégrant un solarium privé et une piscine, le tout réparti sur deux niveaux pour optimiser l'espace. Au rez-de-chaussée, on trouve un vaste salon lumineux avec une cuisine américaine, ainsi qu'une chambre double avec placards intégrés et une salle de bain complète. Depuis le salon, on accède directement à une terrasse accueillante et à la piscine privée, parfaite pour profiter du climat agréable. Le premier étage abrite deux chambres doubles avec placards et deux salles de bains, dont une attenante à la chambre principale. Cette dernière offre un accès à un charmant balcon d'environ 11 m², idéal pour respirer l'air frais local. Le solarium, d'environ 35 m², invite à créer un espace personnalisé, que ce soit pour installer une cuisine d'été, un jacuzzi ou un coin détente. Ces villas bénéficient d'un emplacement exceptionnel, à proximité immédiate des plages et à une courte distance du centre de San Javier, qui propose une large gamme de restaurants, boutiques et bars. L'aéroport local se trouve à seulement cinq minutes en voiture, tandis que l'aéroport principal est à 45 minutes. Les environs offrent des opportunités pour les amateurs de golf et permettent de profiter de sites comme Las Salinas et Arenales de San Pedro. De plus, un centre commercial se situe à quelques minutes, et un important boulevard commercial est à seulement 20 minutes, facilitant l'accès à diverses options de loisirs et de shopping. San Javier est niché dans un cadre privilégié de la Costa Cálida, offrant 4 km de plages pour profiter des eaux paisibles de la région. Ce lieu accueille chaque année de nombreux visiteurs attirés par la possibilité de combiner détente et divertissement. Grâce à son excellente localisation, il est facilement accessible depuis des villes comme Carthagène et Murcia. La ville ne séduit pas seulement par son cadre naturel, mais propose également une riche offre gastronomique et une variété de services, s'imposant comme une destination convoitée dans la région. Pour ceux qui cherchent une vie proche de la mer avec toutes les commodités à portée de main, ces villas représentent un excellent choix. Nous invitons les intéressés à nous contacter pour une visite et découvrir de première main tout ce que ces propriétés ont à offrir.