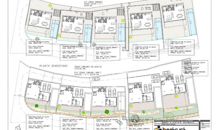
Découvrez cet ensemble exclusif de 5 villas indépendantes au style contemporain, situées dans l'une des zones les plus prisées de la Costa Blanca. Installées dans la partie haute d'Alicante, Finestrat, ces résidences offrent des vues panoramiques uniques sur la mer Méditerranée et la silhouette de la ville voisine, dans une rue calme et élevée qui garantit intimité et connexion directe avec la nature. Chaque villa est conçue avec des lignes modernes, des matériaux haut de gamme et une attention méticuleuse aux détails. L'architecture intérieure se distingue par son ampleur et sa luminosité, avec des plafonds hauts et de grandes baies vitrées orientées vers la mer. Les espaces s'articulent autour d'une zone à double hauteur qui relie visuellement l'entrée et le salon-salle à manger, créant une expérience résidentielle de haut niveau. Les villas disposent de plus de 550 m² construits répartis sur trois niveaux : Rez-de-chaussée et premier étage avec 4 grandes chambres, 5 salles de bains, cuisine intégrée avec espace repas et séjour, buanderie et nombreuses terrasses offrant des vues impressionnantes.Sous-sol avec garage pouvant accueillir plusieurs véhicules, espaces polyvalents et jardins accessibles directement depuis ce niveau.Afin de parfaire l'agrément, chaque toit-terrasse offre un vaste solarium avec possibilité d'installer une cuisine d'été, un jacuzzi ou un espace détente, parfait pour profiter des couchers de soleil. À l'extérieur, une piscine privée avec vue dégagée sur la mer est entourée de jardins et de terrasses qui encouragent la vie en plein air tout au long de l'année. Ces villas ont été conçues avec une approche durable et une haute efficacité énergétique : Façades en blocs Ytong, offrant une excellente isolation.Menuiserie avec rupture de pont thermique et vitrages à faible émissivité.Climatisation par conduits avec pompe à chaleur et plancher chauffant dans toute la villa.Système de renouvellement de l'air avec récupération de chaleur.Éclairage LED intérieur et extérieur.Préinstallation domotique disponible, avec possibilité de personnalisation avec des équipements de premier choix. Une opportunité unique pour ceux qui recherchent luxe, confort et vues sur la mer dans un cadre exclusif et bien connecté, à seulement quelques minutes de la plage et de tous les services.