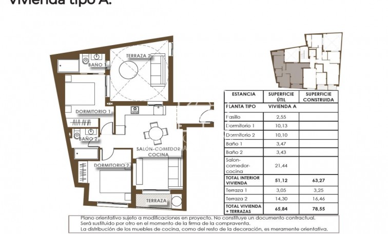
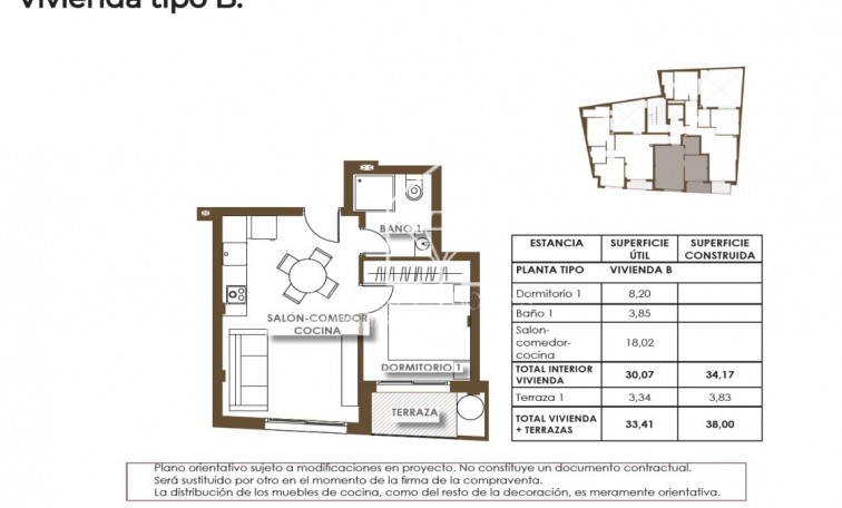
Na słonecznym wybrzeżu Torrevieja, ten nowy kompleks mieszkaniowy oferuje ekskluzywny wybór 16 mieszkań rozmieszczonych między apartamentami, parterami i apartamentami typu penthouse, zaprojektowanymi, by cieszyć się śródziemnomorskim stylem życia w najpełniejszym wydaniu. Jego uprzywilejowana lokalizacja, zaledwie 300 metrów od morza, pozwala cieszyć się plażami i unikalnym naturalnym otoczeniem, a bliskość pola golfowego w odległości 1 kilometra uzupełnia idealną ofertę dla tych, którzy szukają spokoju, rozrywki i dobrego samopoczucia. Zalety nowych budynków Edificio Antonella Beach Każde mieszkanie zostało starannie zaprojektowane, aby oferować przestronne, komfortowe przestrzenie pełne naturalnego światła. Kompleks obejmuje opcje 1 i 2 sypialni z 1 lub 2 łazienkami, dostosowane do różnych stylów życia. Wbudowane szafy i montaż klimatyzacji gwarantują komfort przez cały rok, utrzymując doskonałą równowagę między estetyką a funkcjonalnością. Apartamenty i partery wyróżniają się prywatnymi tarasami, idealnymi do korzystania z uroków na świeżym powietrzu, podczas gdy apartamenty typu penthouse mają solarium, dodatkową przestrzeń zachęcającą do relaksu, opalania się lub organizowania kolacji z widokiem na morze. Życie w mieścieTorrevieja Położenie, zaledwie 300 metrów od wybrzeża, umożliwia korzystanie z nadbrzeżnych spacerów, restauracji nad morzem oraz plaż z krystalicznie czystą wodą, które charakteryzują Torrevieja. Ponadto, pole golfowe znajdujące się 1 kilometr dalej oferuje doskonałą alternatywę rozrywki dla miłośników sportu. Lotnisko Alicante-Elche, oddalone o zaledwie 45 kilometrów, zapewnia doskonałe połączenie z krajowymi i międzynarodowymi destynacjami. Zonas comuns y estilo de vida W obiekcie znajduje się wspólne przestrzenie zaprojektowane dla dobrego samopoczucia i współżycia, gdzie szczególnie wyróżnia się zespół basenów wspólnotowych otoczonych ogrodzonymi terenami zielonymi, co czyni je idealnymi na letnie dni. Do dyspozycji jest również wspólne solarium, idealne do relaksu, interakcji towarzyskich lub korzystania ze słońca w bezpiecznym i spokojnym otoczeniu. Życie tutaj to cieszenie się doskonałą równowagą między nowoczesnym komfortem, bliskością morza i śródziemnomorskim klimatem.