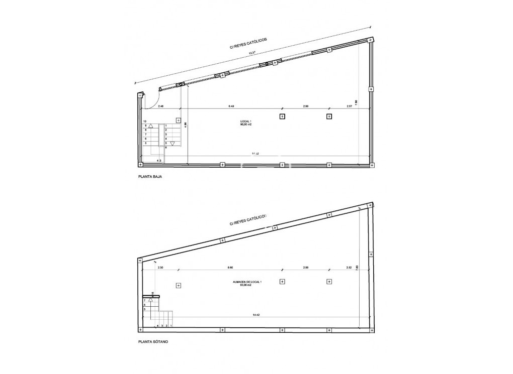
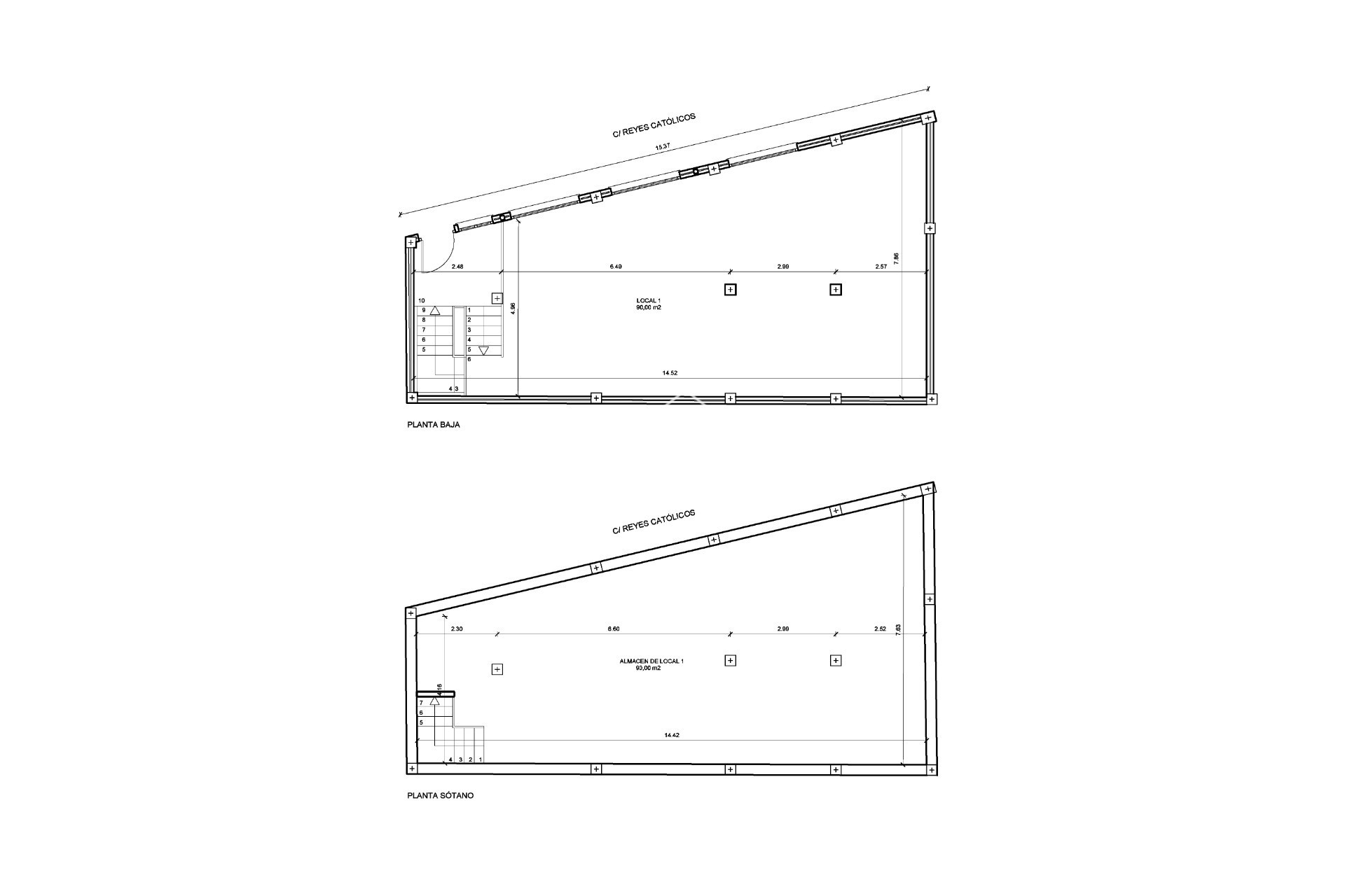
Na sprzedaż nowy lokal handlowy w Los Montesinos. Jest sprzedawany jako taki, w podstawowej formie, gotowy do wykończenia w stylu dokładnie takim, jak sobie życzysz. Istnieje również możliwość przekształcenia tego lokalu w bardzo przestronny dom do zamieszkania. Główne wejście jest lekko podwyższone, a od frontu znajdują się cztery duże okna, przez które wpada mnóstwo naturalnego światła. Główne piętro nieruchomości ma 97m2, co jest świetnym rozmiarem, niezależnie od tego, czy zamierzasz go wykorzystać jako komercyjny, czy mieszkalny. Tuż przy wejściu znajdują się schody prowadzące w dół do półpiwnicy. Półpiwnica ma powierzchnię 85 m2 i może być wykorzystana do przechowywania lub jako część domu, jeśli chcesz mieszkać. W górnej części znajdują się wąskie okna, które wpuszczają naturalne światło dzienne, jak widać na zdjęciach zewnętrznych. Nieruchomość z dużym potencjałem, niezależnie od przeznaczenia, jakie zamierzasz zastosować!