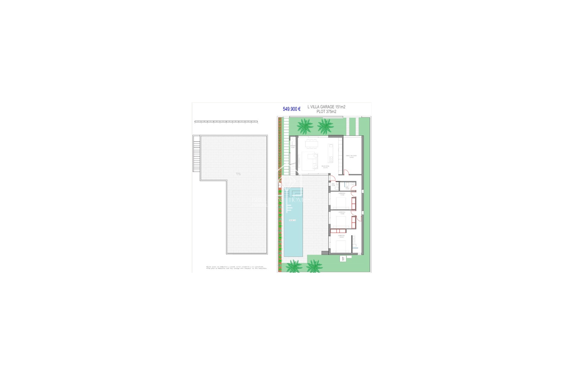
Descubra las impresionantes villas independientes y adosadas de obra nueva en una sola planta, con solárium, piscina privada y zona de aparcamiento en la hermosa región de Murcia, Los Alcázares. Las residencias están diseñadas para optimizar el espacio, ofreciendo un estilo de 3 dormitorios y 2 baños. Con precios que oscilan entre 479 900 € y 749 900 €, estas propiedades destacan por su confort y diseño moderno. Estas magníficas viviendas están equipadas con tres dormitorios dobles, todos con amplios armarios empotrados, y dos baños, incluyendo uno en suite en el dormitorio principal, además de un aseo adicional. La cocina moderna, completamente equipada, cuenta con una cocina americana que se integra perfectamente con el salón/comedor de diseño abierto. Desde aquí, se accede al espacioso jardín de baldosas y a la piscina privada, creando un ambiente ideal para disfrutar con familia y amigos. La superficie de estas villas varía entre 109 m² y 142 m². Ubicado en el municipio de Los Alcázares, La Serena es un enclave privilegiado que se extiende a lo largo de 60 hectáreas frente al sereno Mar Menor. Este entorno natural es perfecto para disfrutar del clima excepcional que ofrece la región. Con 7 kilómetros de costa, desde Los Narejos hasta Punta Brava, y con un enfoque en el sector servicios por el turismo, este lugar es considerado un verdadero paraíso de descanso y ocio. En la actualidad, Los Alcázares se consolida como uno de los destinos más atractivos en la Región de Murcia, ideal para quienes buscan calidad de vida y actividades náuticas.