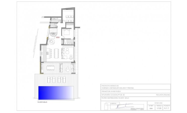
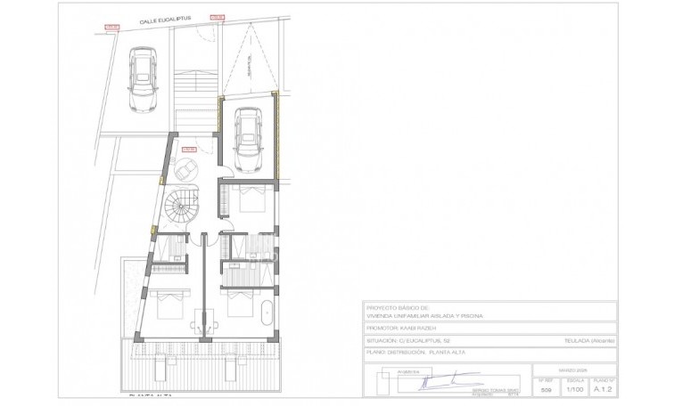
✨ Chalet/Villa de Lujo en Moraira con Vistas al Mar ✨ Descubra la exclusividad de esta villa contemporánea ubicada en una parcela de 912 m², a pocos minutos de las idílicas playas de Moraira y de todos los servicios del centro. Una vivienda que redefine el concepto de calidad de vida, ofreciendo espacios amplios, diseño moderno y unas vistas al mar que enamoran. Con una superficie construida de 350 m² y 292 m² útiles, la villa se distribuye en dos plantas perfectamente diseñadas para aportar funcionalidad, confort y elegancia. Distribución de la vivienda Planta principal: salón amplio y luminoso integrado con el comedor, moderna cocina con isla central, aseo de cortesía y acceso directo a las terrazas exteriores.Área de descanso: cuatro dormitorios con baños en suite, todos con acabados de primera calidad, armarios empotrados y acceso a zonas exteriores.Planta superior: dormitorio principal con vestidor, baño privado y una terraza privada de 123 m² con espectaculares vistas al Mediterráneo. Espacios exteriores La villa está rodeada por un entorno pensado para disfrutar del clima mediterráneo: amplias terrazas, jardines de fácil mantenimiento y una elegante piscina donde relajarse con la familia o amigos. Características destacadas 4 dormitorios y 4 baños + 1 aseoCocina moderna con islaSalón y comedor de concepto abiertoParcela de 913 m²Piscina y zona de terrazas privadasMateriales y acabados de primera calidad