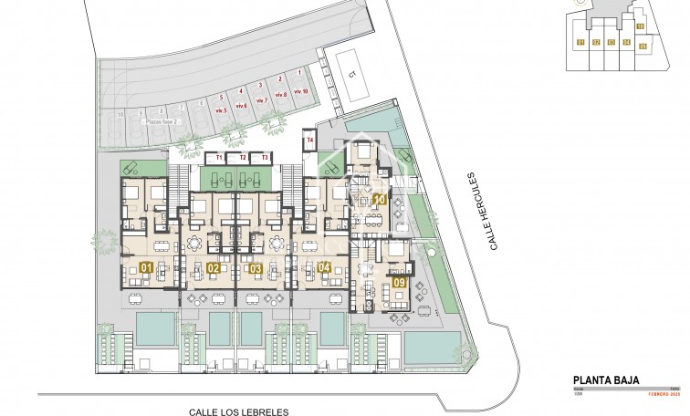
Nueva promoción boutique con piscina privada en Pilar de la Horadada Exclusividad, diseño moderno y vida mediterránea a solo 2 km del mar Presentamos una exclusiva promoción de obra nueva compuesta por solo 10 viviendas en Pilar de la Horadada, al sur de la Costa Blanca. Ubicadas en una zona tranquila junto a parques y espacios verdes, estas propiedades ofrecen el equilibrio perfecto entre privacidad, comodidad y proximidad a las playas de Torre de la Horadada. Viviendas de 2 y 3 dormitorios con amplios exteriores privados Elige entre diferentes tipologías adaptadas a tu estilo de vida: Planta baja: jardín privado, piscina con zona de playa y sistema de riego automático.Planta alta: solárium con cocina de verano, pérgola, aseo exterior, piscina privada con jacuzzi y trastero en planta baja.Villas adosadas: amplios espacios interiores y exteriores con jardín y piscina privada. Todas las viviendas cuentan con plaza de aparcamiento incluida. Equipamiento completo y calidades premium Cada vivienda está diseñada para ofrecer el máximo confort durante todo el año, con detalles como: Aire acondicionado por conductos instaladoPersianas eléctricas y puerta de seguridadIluminación LED interior y exteriorCocina equipada con electrodomésticos BOSCH o SIEMENSBaños con suelo radiante, mamparas, muebles y espejosDiseño contemporáneo con máxima entrada de luz natural Ubicación ideal, cerca de todo Playas: 2 kmGolf Lo Romero: 6 kmC.C. Dos Mares (San Javier): 10 kmC.C. Zenia Boulevard: 12 kmAeropuerto Murcia: 40 kmAeropuerto Alicante: 70 km Perfectas para vivir o invertir Estas viviendas son ideales como residencia habitual, segunda vivienda o inversión para alquiler. Su estilo moderno, calidades superiores y excelente ubicación las convierten en una oportunidad única en la Costa Blanca. Solicita más información o agenda tu visita hoy mismo.