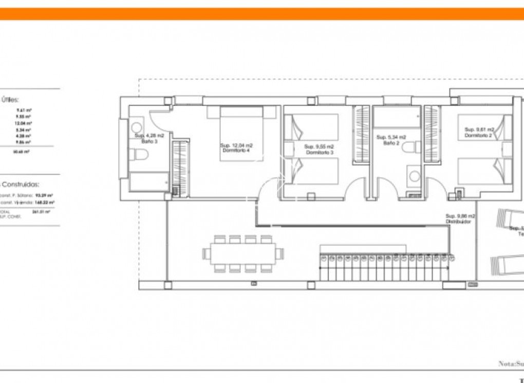
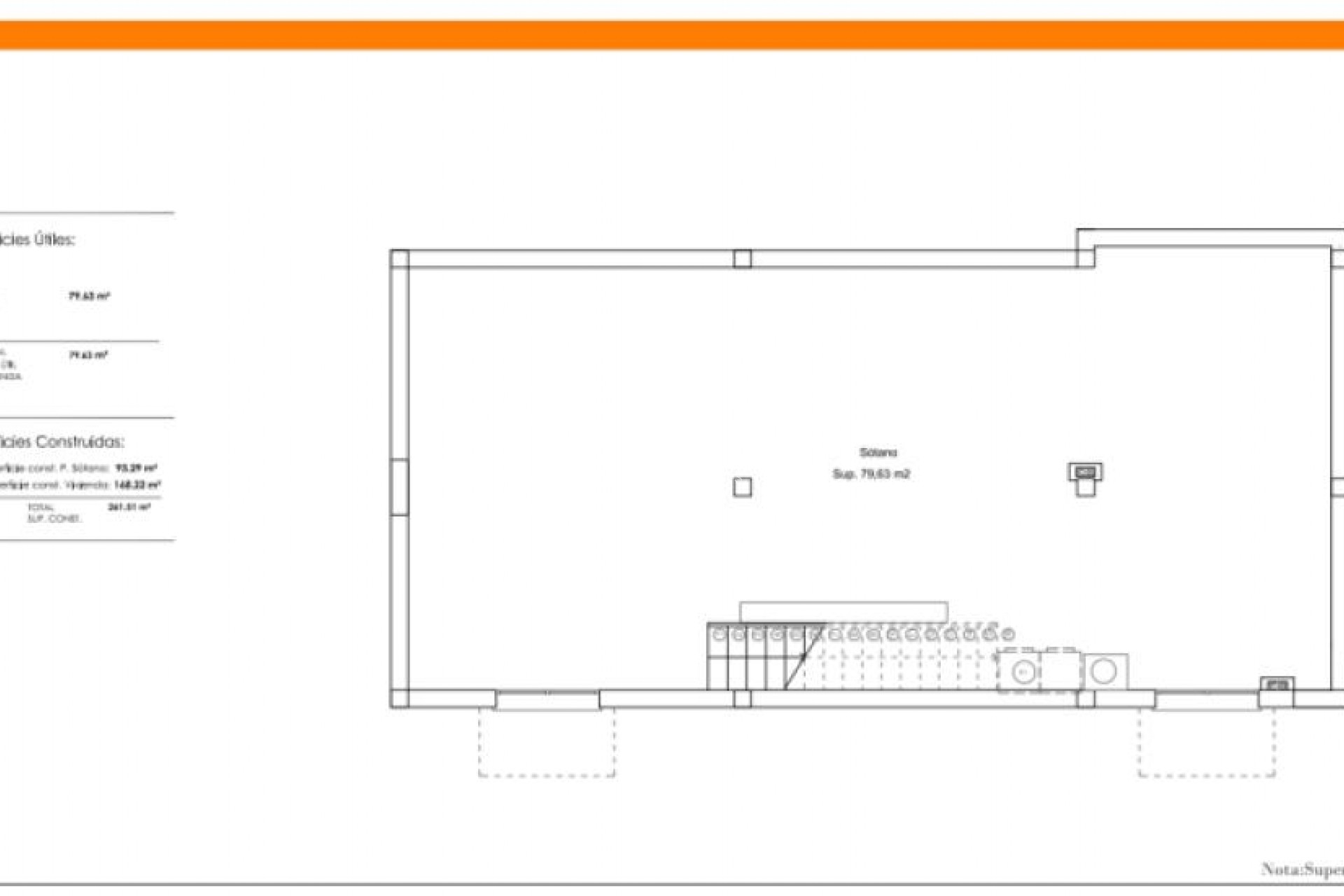
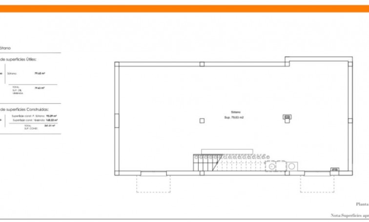
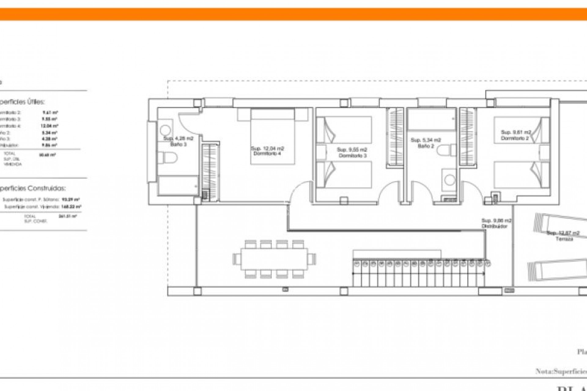
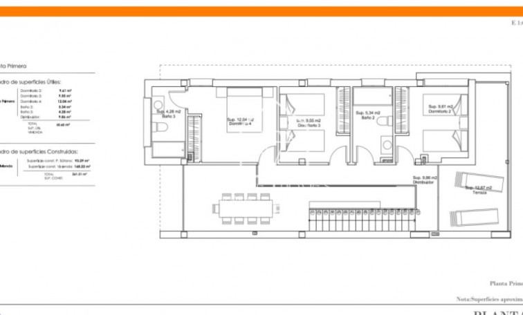
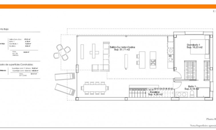
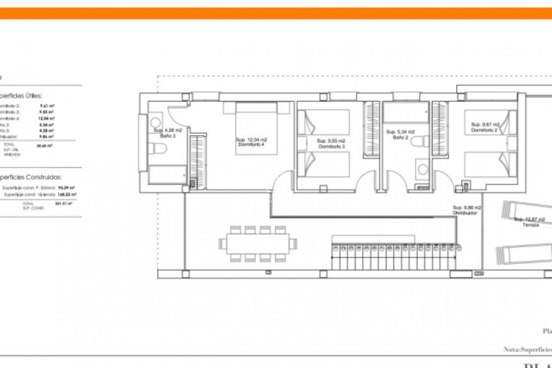
Viviendas unifamiliares contemporáneas con jardín y piscina privada Villas de 3 plantas · 3 dormitorios · Diseño moderno y funcional Descubre un nuevo concepto de hogar donde la arquitectura rompe con lo convencional y la luz natural se convierte en el verdadero protagonista. Estas exclusivas villas de tres plantas representan una manera diferente de vivir: espacios abiertos, líneas puras y una perfecta conexión entre interior y exterior. Cada vivienda ha sido diseñada para ofrecer amplitud, confort y privacidad, con una parcela individual, jardín privado y piscina donde disfrutar del clima mediterráneo durante todo el año. En la planta principal, un único espacio diáfano integra salón, comedor y cocina, creando un ambiente moderno y acogedor, con ventanales de suelo a techo que llenan cada rincón de luz y conectan directamente con el exterior. Además, dispone de un dormitorio y un baño en planta baja, ideal para visitas o despacho. La planta superior alberga tres amplios dormitorios con armarios empotrados y dos baños (uno en suite), además de acceso directo a una terraza privada perfecta para relajarse o disfrutar de las vistas. El sótano o planta inferior ofrece un espacio completamente personalizable, diáfano y sin obstáculos estructurales, con luz y ventilación natural, ideal para crear una sala de ocio, gimnasio, estudio o dormitorio adicional. Detalles que marcan la diferencia: Distribuciones amplias y funcionalesMateriales y acabados de alta calidadPreinstalación de aire acondicionadoIluminación natural uniforme durante todo el díaAcceso directo al jardín y la piscina privada Un hogar diseñado para quienes buscan trascender los límites de la vivienda tradicional, combinando diseño, bienestar y exclusividad en una de las zonas más consolidadas y tranquilas de la Costa del Sol. Vive la arquitectura como una experiencia. Vive diferente.